拥有一个简单舒适的小窝,哪怕每天奔波在外,也能感受到生活质感的提升。如果你想在小户型里实现 “工作、生活、居住、做饭、淋浴” 全功能,那本次案例正是你要找的参考 —— 每一处空间都被精准利用,小面积也能承载多元需求。
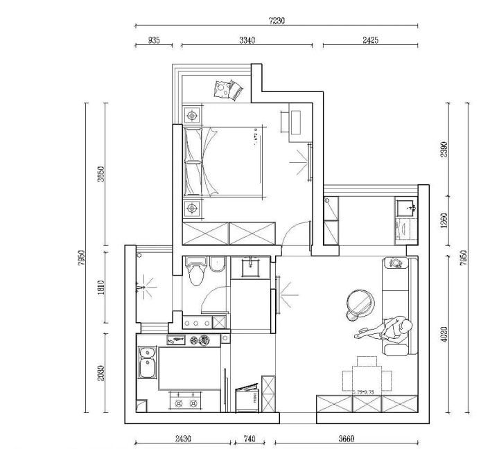
平面布置图
一、户型基础:平面布局藏巧思,功能无死角
从平面布置图可见,设计师的核心思路是 “挤空间、融功能”:
进门设玄关柜,柜与厨房间隙嵌冰箱;
卧室做榻榻米飘窗,阳台规划为洗衣储物区;
各功能区紧密衔接却不拥挤,让小户型没有 “闲置角落”。
二、空间设计:实用与颜值兼顾,细节见真章
1. 玄关:通顶柜 + 夹缝冰箱,收纳一步到位
玄关作为入户第一站,功能性拉满:
定制通顶玄关柜,中间留开放格 —— 放钥匙、包包等进出门必备物品,或摆装饰品点缀生活;下方分区放鞋,上方收纳行李箱等大件,直接减轻其他空间的储物压力;
柜与厨房之间的缝隙刚好嵌入冰箱,不浪费 1 厘米空间;上方装嵌灯照明,避免角落昏暗,拿取物品更方便。
2. 客厅:浅色调 + 细腿家具,显大又清爽
客厅以 “干净简约” 为基调,用色彩和家具放大空间感:
墙面与色彩:乳胶漆不贪多色,选蓝色背景墙(视觉上有 “缩小退后” 效果,小空间用能显大),搭配白色布艺沙发 —— 沙发选金属细支腿款式,下方地面无遮挡,清洁灰尘超方便,还显轻盈不笨重;
地面与收纳:铺浅色系木地板,配深色长条电视柜,视觉纵深感和层次感更强;其他家具 / 软装优先选近白色调,避免色彩杂乱,让小客厅显通透。
3. 餐边柜:与玄关柜呼应,实用不单调
餐边柜与玄关柜分处入户左右两侧,风格保持一致:
选实木质地柜体,自带竖条花纹,再点缀几条黑色线条,打破单调;
客人来访时,将折叠侧拉直拼接成长餐桌,瞬间扩容,既惊喜又实用,不浪费有限面积。
5. 厨房:白色为主,简约耐脏易打理
小户型厨房选白色准没错:
白色橱柜简约大气,视觉上能让小厨房显亮堂;
很多人担心白色不耐脏,但厨房这类易藏污的地方,白色反而能 “及时显脏”,方便提前清理,长期保持空间清洁干爽。
6. 卧室:推拉衣橱 + 绿调背景,舒适又丰富
卧室设计兼顾 “省空间” 与 “色彩层次”:
衣橱选推拉门式,比开合式节省开门的 “摆动空间”,小卧室更显宽敞,美观与实用性不冲突;
背景墙在客厅蓝色基础上加入绿色,色彩更丰富却不杂乱,搭配简约床品,睡眠氛围舒适又有活力。
7. 卫生间:洗漱外置,效率翻倍不排队
把洗漱台外置到卫生间门外,好处超明显:
淋浴区和马桶区的空间瞬间变宽敞,使用更舒适;
早上高峰期不用排队洗漱 —— 有人洗漱时,其他人可正常使用马桶 / 淋浴,对只有一个卫生间的小户型来说,实用度大大提升。
8. 阳台:洗衣 + 储物一体,功能完整
阳台规划为 “洗衣储物区”:
放置洗衣机,旁边配壁橱收纳洗衣液、晾衣架等家务用品,实现洗衣、晾衣、储物一体化,功能完整不零散,让阳台不再只是 “晾晒区”。
配资平台哪个好,配资专业股票,证券配资开户提示:文章来自网络,不代表本站观点。